WORK
INSPIRATION
ABOUT
CONTACT
WORK
INSPIRATION
ABOUT
CONTACT
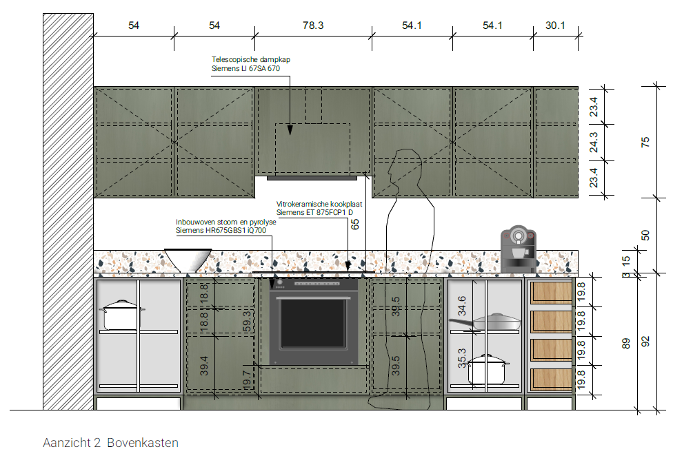
keuken K & H
Concept, ontwerp & uitvoeringsplannen van een keuken in een gezinswoning.
Gecco Cohousing
project, Gentbrugge. In opdracht van Huiswerk BV.
Dit vind je misschien ook interessant
the kids are alright
2024
concept store Isabel Marant
2019
assenede
2025
another beauty
2023
keuken DVVT
2017
MILHO oostende
2016
slaapkamer S & B
2020
pretty in pink
2022
cafe DB
2021
ontmoetingsplek KASK
2018
↑
Terug naar boven