WORK
INSPIRATION
ABOUT
CONTACT
WORK
INSPIRATION
ABOUT
CONTACT
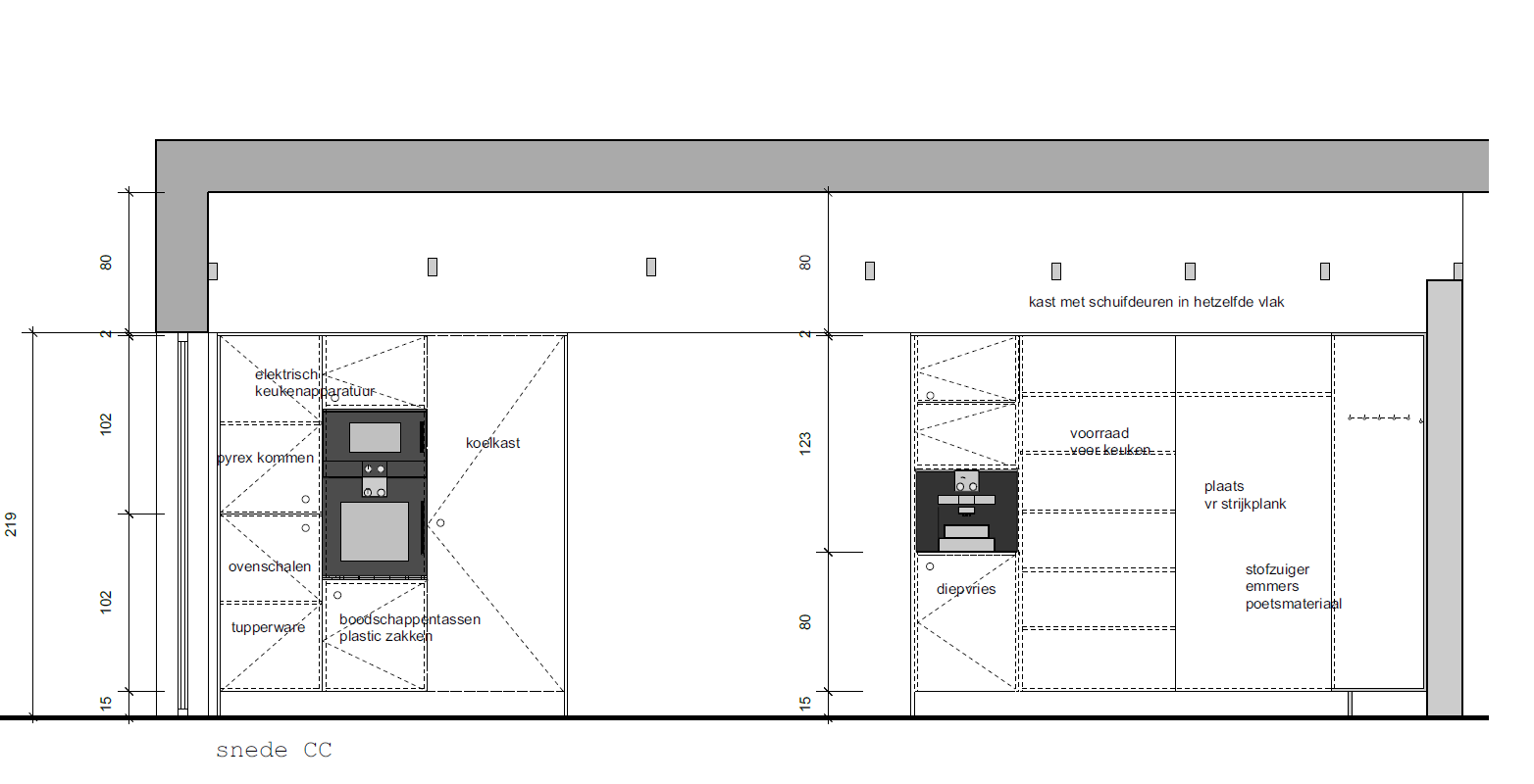
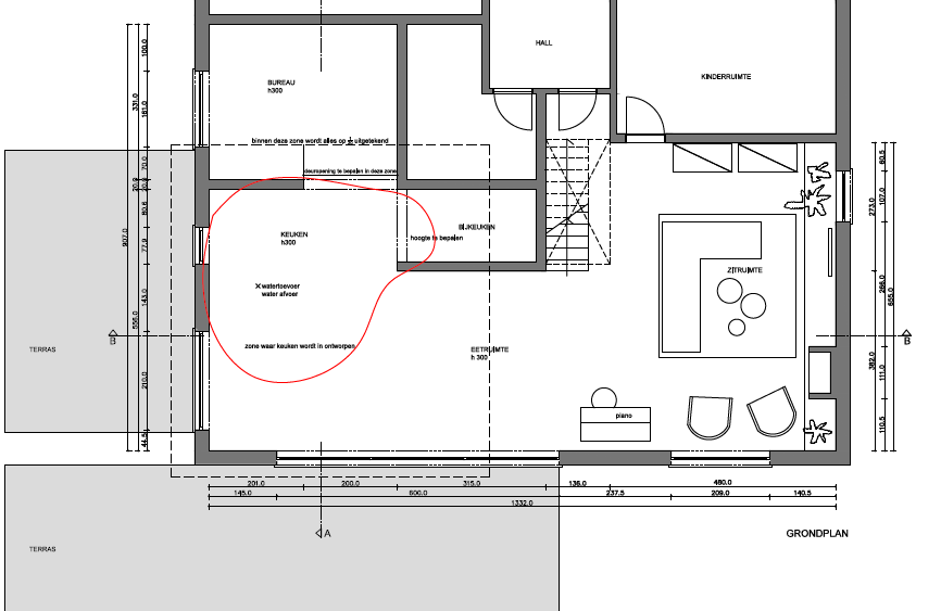
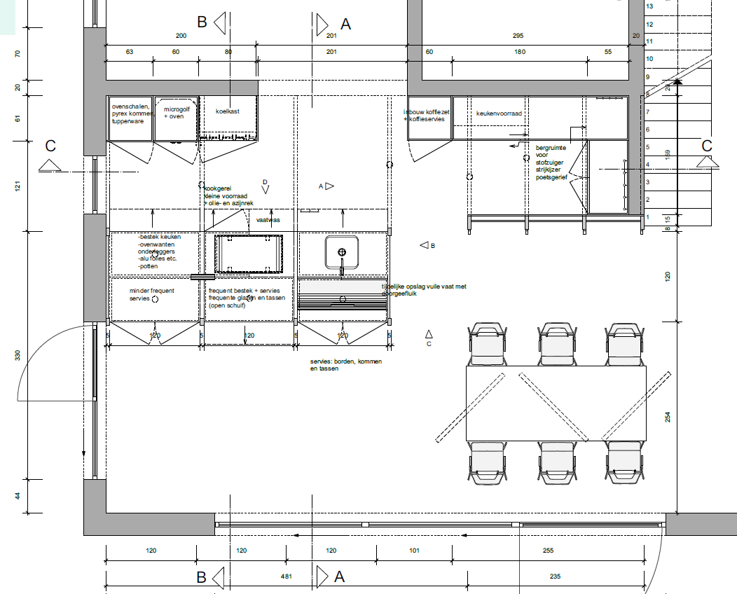
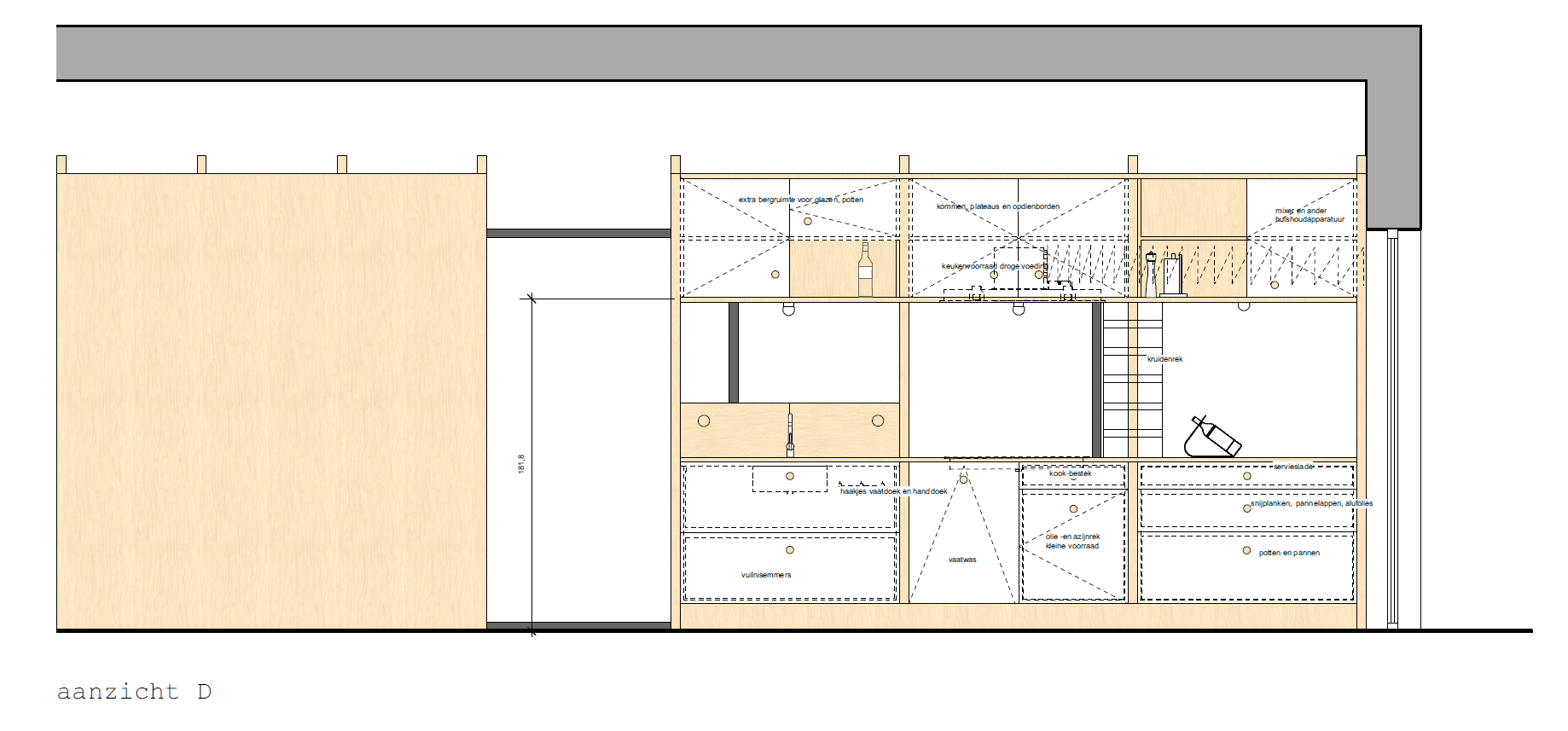
keuken DVVT
Ontwerp en detaillering van de functie 'koken'
. Binnen een gegeven context en met respect voor de stijl en vormentaal van de opdrachtgevende ontwerper (De Vylder Vinck Tailleu).
Dit vind je misschien ook interessant
another beauty
2023
slaapkamer S & B
2020
cafe DB
2023
scandi japandi
2022
eat your greens
2022
assenede
2025
thuis voor M & K
2024
cafe DB
2021
kitchen & dining area FOS
2019
bathroom bliss ✨
2023
↑
Terug naar boven