WORK
INSPIRATION
ABOUT
CONTACT
WORK
INSPIRATION
ABOUT
CONTACT
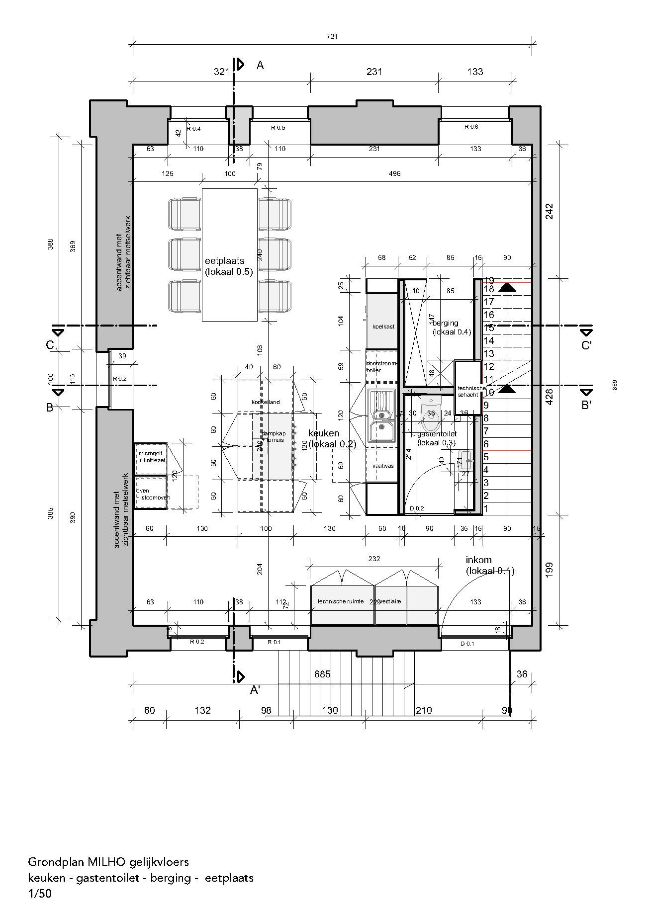
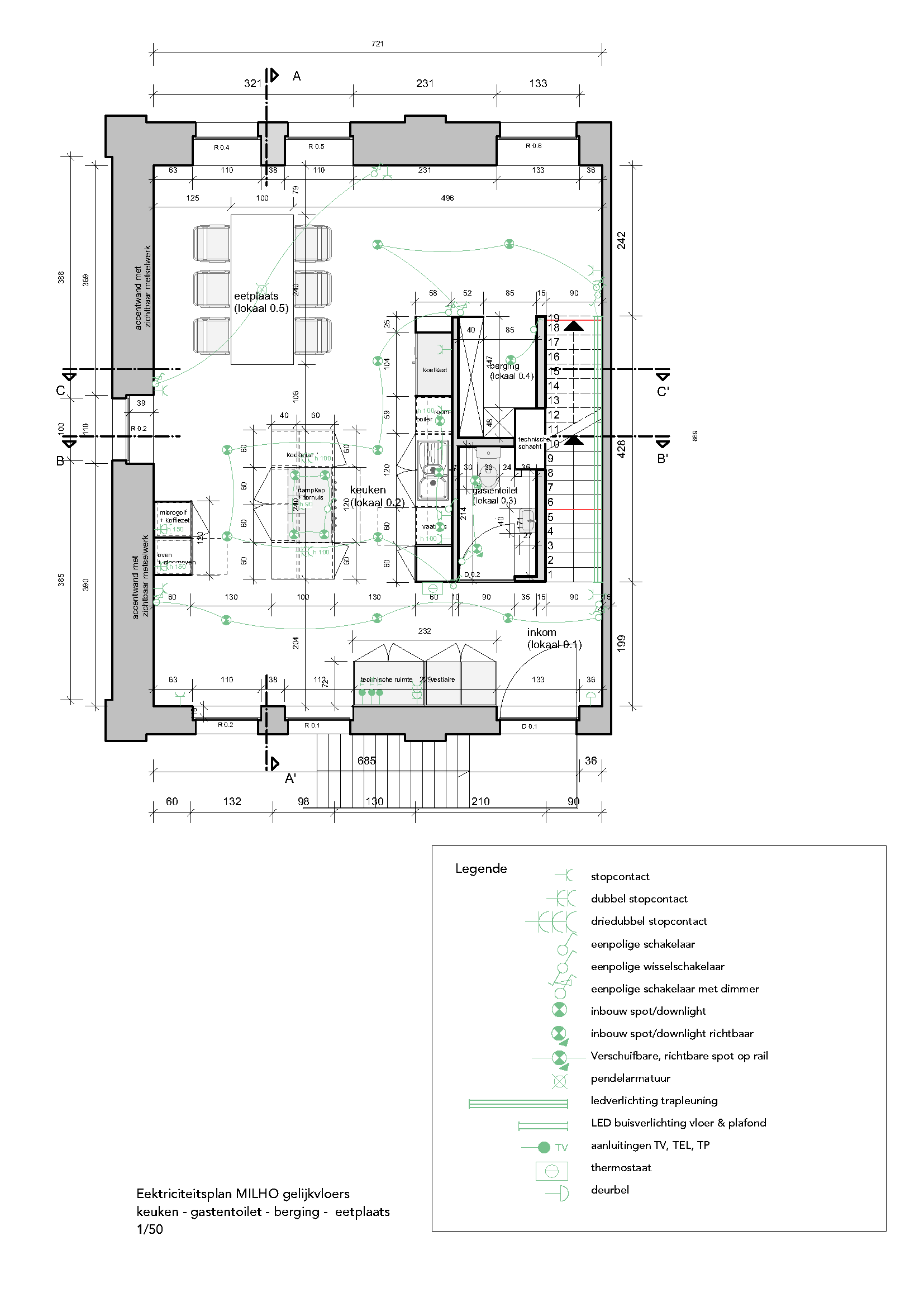
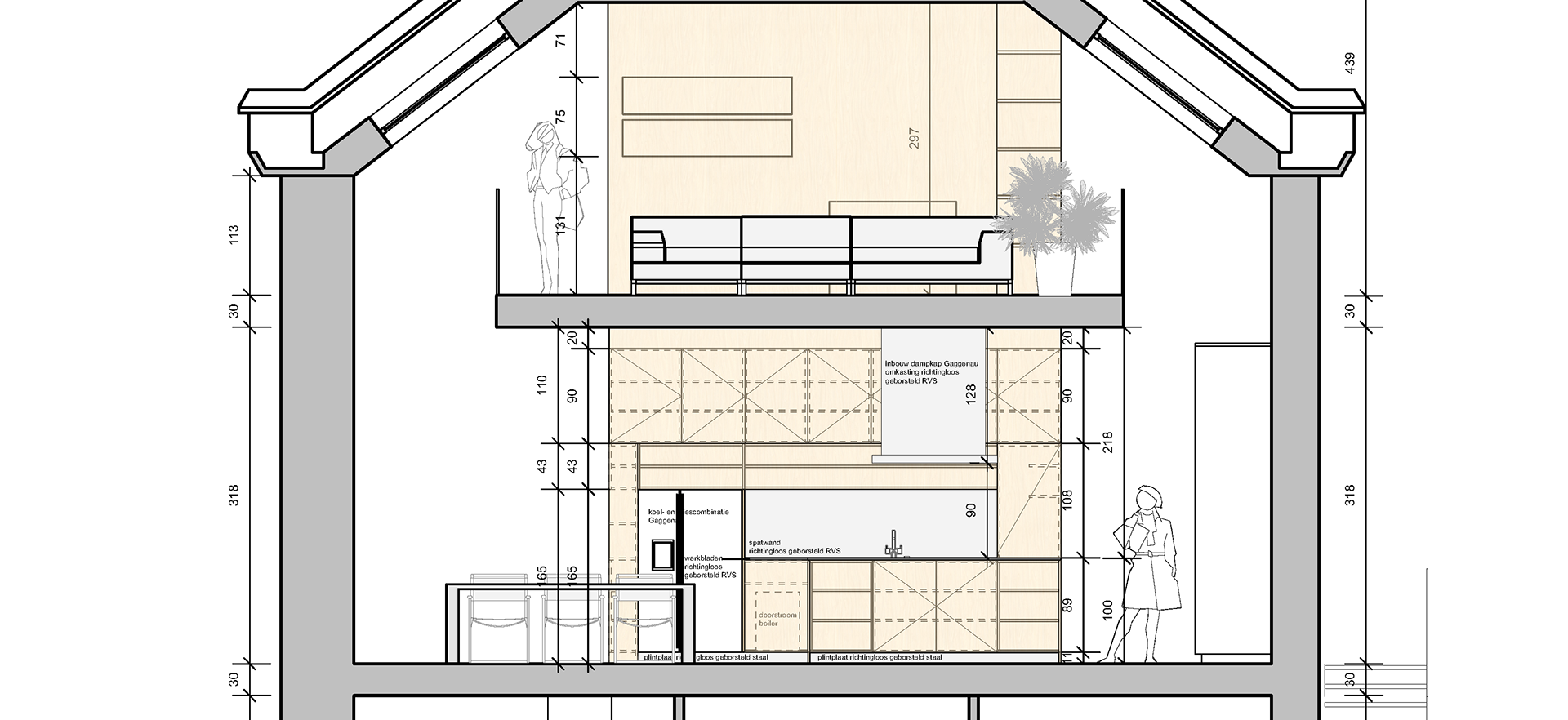
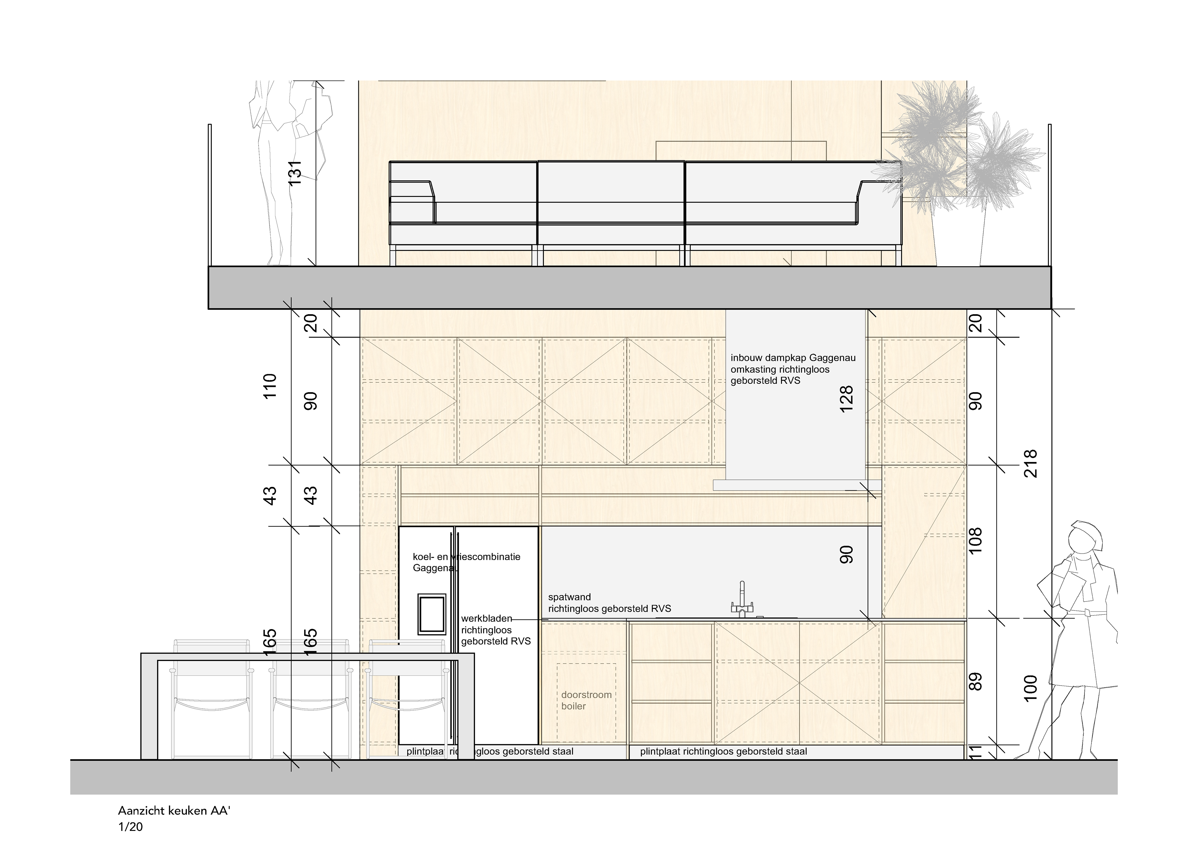
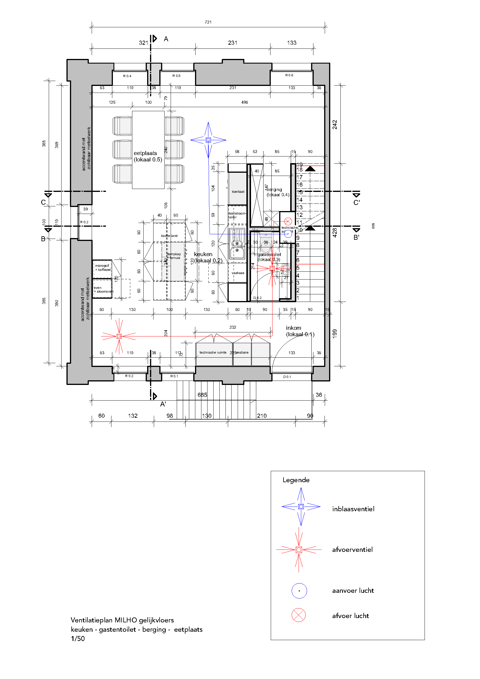
MILHO oostende
Concept en voorontwerp van een gezinswoning binnen een herbestemmingsproject van het Militair Hospitaal Oostende.
Detaillering van technieken gelijkvloers met keuken en eetplaats + opmaak meetstaat en bestek.
Dit vind je misschien ook interessant
FB in K
2024
assenede
2025
viergemede
2024
roderoestraat
2024
teeny weeny
2023
kitchen & dining area FOS
2019
another beauty
2023
huis B in D
2022
cafe DB
2023
concept store Isabel Marant
2019
↑
Terug naar boven